Продава КЪЩА, гр. София, Горна баня
- €650,000/1,271,290 лв.
Общ преглед
- Къща
- 2025
Описание
Galiano Estates ви представя двуетажна къща в с. Горна баня – тишина, комфорт и стил.
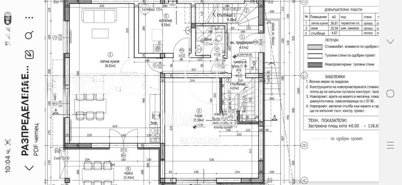
Разпределение:
– Приземен етаж сутерен включва голямо сервизно помещение и гараж
– Първи етаж включва входно антре, просторна всекидневна с кухня и трапезария от която се излиза на голяма панорамна тераса, баня с тоалетна и помещение за термопомпа въздух вода от която се захранва цялата къща.
– Втори етаж просторна тераса с красив изглед ,голяма всекидневна с кухненски бокс, две спални, две бани с тоалетна.
Отоплението е с термопомпа, подово отопление или радиатори. Всички помещения са на шпакловка без замазка. Има и просторен двор 400 кв.м. подходящ за озеленяване и външна зона за релакс. Къщата е масивно строителство най висок клас ,вентилирана окачена фасада, изолация каменна вата, дограма Salamanderblue Evolution 92 най висок клас. Оферта № 6343
Детайли
-
ID на оферта 6343
-
Цена €650,000/1,271,290 лв.
-
Квадратура 370
-
Дворна площ 500
-
Спални 2
-
Стаи 5
-
Година на строеж 2025
-
Тип имот Къща
-
Вид оферта Продава
-
Обзавеждане Необзаведен
-
Цена кв.м. 1757
-
Отопление Локално
-
Ново строителство Да
-
Балкони (бр.) 2
-
Баня с тоалетна (бр.) 3
Адрес
-
Град: София
-
Квартал: Горна Баня
Подобни имоти
Продава КЪЩА, гр. София, с. Владая
- €649,000/1,269,334 лв.
Стилна еднофамилна къща
- €660,000/1,290,848 лв.
Стилна къща в затворен комплекс до Англо-Американското училище
- €2,300/4,498 лв.
Къща в с. Драговищица
- €380,000/743,215 лв.





