Продава 3-СТАЕН град София, Изток
- €675,500/1,321,163 лв.
Общ преглед
- 3-стаен
- 2025
Описание
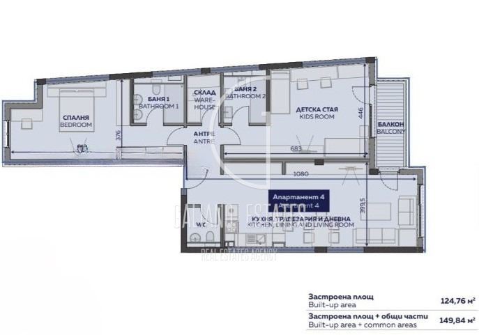
Без комисионна от страна на купувача!!! Galiano Estates ви представя просторен тристаен тухлен апартамент с площ от 149 кв.м . Жилището е с функционално разпределение и минимална площ в коридори. Състои се от входно антре, просторна дневна с кухня и трапезария, тераса с изход от едната спалня и дневната , две спални със собствен санитарен възел, отделна тоалетна и склад. Отоплението е на ТЕЦ и климатик. Луксозни общи части. Входът с контрол на достъп. Към жилището се предлагат външни и подземни паркоместа с цена 55 000 € без ДДС и гаражи цена 63 000€ – 65 000€ без ДДС . Сградата е разположена на много комуникативно място в близост до метро станция Жолио Кюри, до парк Борисова градина, до детски градини, училища и основни градски булеварди. Цената е без ДДС. Оферта № 6149
Детайли
-
ID на оферта 6149
-
Цена €675,500/1,321,163 лв.
-
Квадратура 149
-
Спални 2
-
Стаи 3
-
Баня 0
-
Година на строеж 2025
-
Тип имот 3-стаен
-
Вид оферта Продава
-
Етаж 2
-
Етажи 6
-
Обзавеждане Необзаведен
-
Вид строителство Тухла
-
Цена кв.м. 4534
-
Отопление ТЕЦ
-
Ново строителство Да
-
Балкони (бр.) 2
-
Тоалетни (бр.) 1
-
Баня с тоалетна (бр.) 2
Адрес
-
Град: София
-
Квартал: Изток
Подобни имоти
Просторен тристаен апартамент в кв. Малинова долина
- €319,200/624,301 лв.
Светъл тристаен апартамент с АКТ 16 в кв. Малинова долина
- €270,000/528,074 лв.
Отличен тристаен апартамент с АКТ 16 в ж.к. Студентски град
- €270,000/528,074 лв.



