Панорамен многостаен апартамент в кв. Красна поляна
- €243,380/476,010 лв.
- €243,380/476,010 лв.
Общ преглед
- Многостаен
- 2027
Описание
Galiano Estates Ви представя десететажна жилищна сграда, в която ще откриете функционалност на апартаментите, без аналог на пазара на имотите в гр. София. Всеки квадратен метър, който закупувате, може да бъде използван рационално. Предлагаме Ви реална жилищна площ – достатъчно просторни стаи във всички апартаменти, дори в тези с най-малка площ, разпределени по начин, който Ви позволява да усвоите площта на жилището си на 100 % и да я използвате с желаното от Вас предназначение.
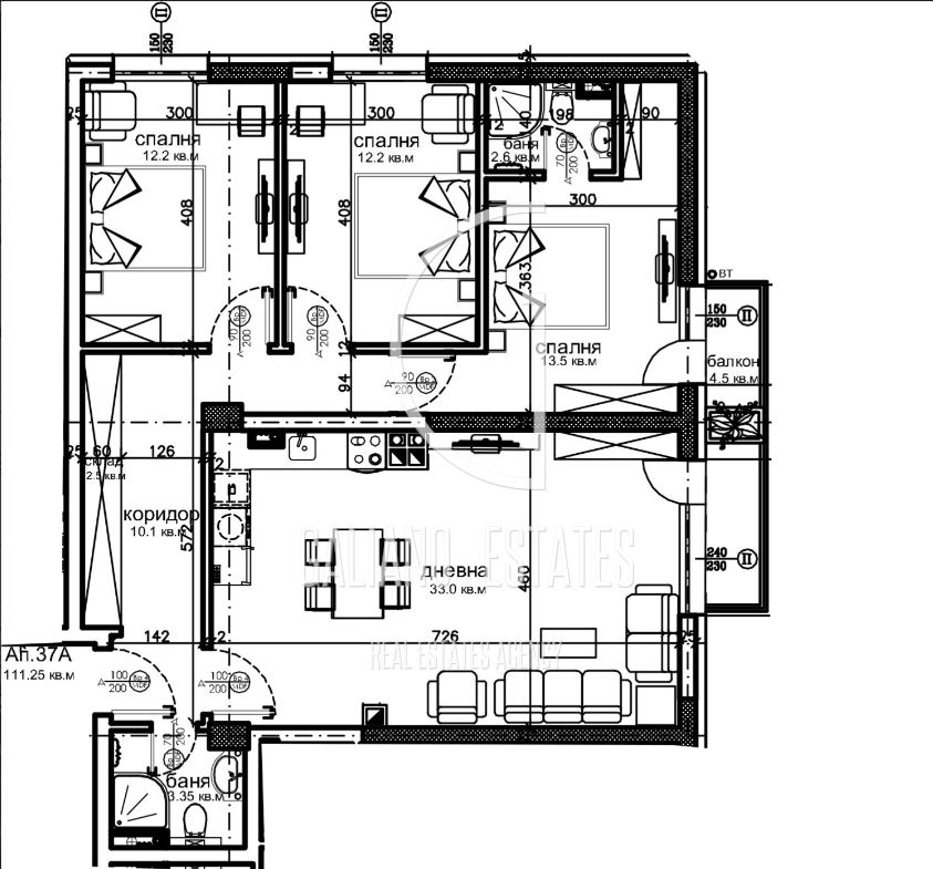
Апартаментът, който ви преставяме се намира на на осми жилищен етаж и има следното разпределение: просторна всекидневна с кухня, три спални, две бани с тоалетна, тераса и антре.
Общи части само 10%, архитектурно постижение, което граничи с невероятното за жилищния пазар, такъв какъвто го познаваме – досега !
Чертежите на жилищните разпределения показват СВЕТЛА ПЛОЩ на помещенията, а не застроена площ! Подходът ни към нашите клиенти е прям, ние Ви показваме реалната използваема площ на всяко помещение, без да Ви заблуждаваме за размера му, като по този начин Вие можете да предвидите с точност желаното обзавеждане на имота Ви.
Изключително светли жилища. Светла височина от 2,65 м. на помещенията и 3,30 м. на последен етаж. Ние не пестим материали! Френски прозорци, 5-камерна немска дограма, троен стъклопакет, нисоемисионно КА стъкло .
Изключително атрактивна локация на 6 минути от център, на 6 минути от Околовръстно шосе, на 2 минути (800 м) от МЕТРОСТАНЦИЯ ОВЧА КУПЕЛ, училище, детска градина, градски транспорт, перфектна инфраструктура, канал и не на последно място – с прекрасна гледка към Витоша планина.
Сградата се намира в югозападната част на София, на границата между три квартала – Лагера, Овча купел и Красна поляна, в новоизграждащ се нов емблематичен жилищен квартал.
Истински комфортно жилище, не огромни коридори и тераси, заемащи половината площ на апартамента Ви и оскъпяване в общи части. Жилище означава място, на което прекарвате живота си, където събирате семейство и приятели в просторната си дневна, където си почивате в комфортната си спалня, а стига да пожелаете, децата или гостите Ви ще имат своя функционална стая, а защо не и две? И всичко това, изпълнено с луксозни материали и на достъпна цена!
В сградата има и други свободни двустайни и тристайни апартаменти. Възможност за закупуване на ПМ и гаражи на цени от 18990Евро!
Оферта 4813
Детайли
-
ID на оферта 4813
-
Цена €243,380/476,010 лв.
-
Квадратура 125
-
Спални 3
-
Стаи 4
-
Баня 0
-
Година на строеж 2027
-
Тип имот Многостаен
-
Вид оферта Продава
-
Етаж 8
-
Етажи 10
-
Обзавеждане Необзаведен
-
Вид строителство Тухла
-
Цена кв.м. 1950
-
Ново строителство Да
-
Балкони (бр.) 1
-
Баня с тоалетна (бр.) 2
Адрес
-
Град: София
-
Квартал: Красна Поляна
Подобни имоти
Модерен обзаведен апартамент с 3 спални и двор – 203 Residence
- €775,000/1,515,768 лв.
Мезонет с прекрасни тераси до парк
- €698,000/1,365,169 лв.
Панорамен апартамент в кв. Манастирски ливади
- €525,000/1,026,811 лв.
Просторен четиристаен апартамент в кв. Овча Купел
- €309,520/605,369 лв.
