Къща в затворен жилищен комплекс в Бистрица
- €724,740/1,417,468 лв.
Общ преглед
- Къща
- 2026
Описание
Galiano Estates Ви представя висок клас затворен жилищен комплекс във в.з. Бистрица. Комплексът се състои от 12 еднофамилни къщи, напълно автономни, групирани в шест жилищни сгради в алпийски стил с обща РЗП от 2506 кв.м. Проектът разполага със собствен зелен двор и изцяло нова инфраструктура. Стратегически разположен в изключително спокоен, изцяло жилищен район. Достъпът до него е по нов частен асфалтов път. Всяка от къщите в комплекса разполага със собствена барбекю зона за индивидуално ползване. Собственият заден двор, сепариран с жив плет, е личното ви място за отдих и забавление.
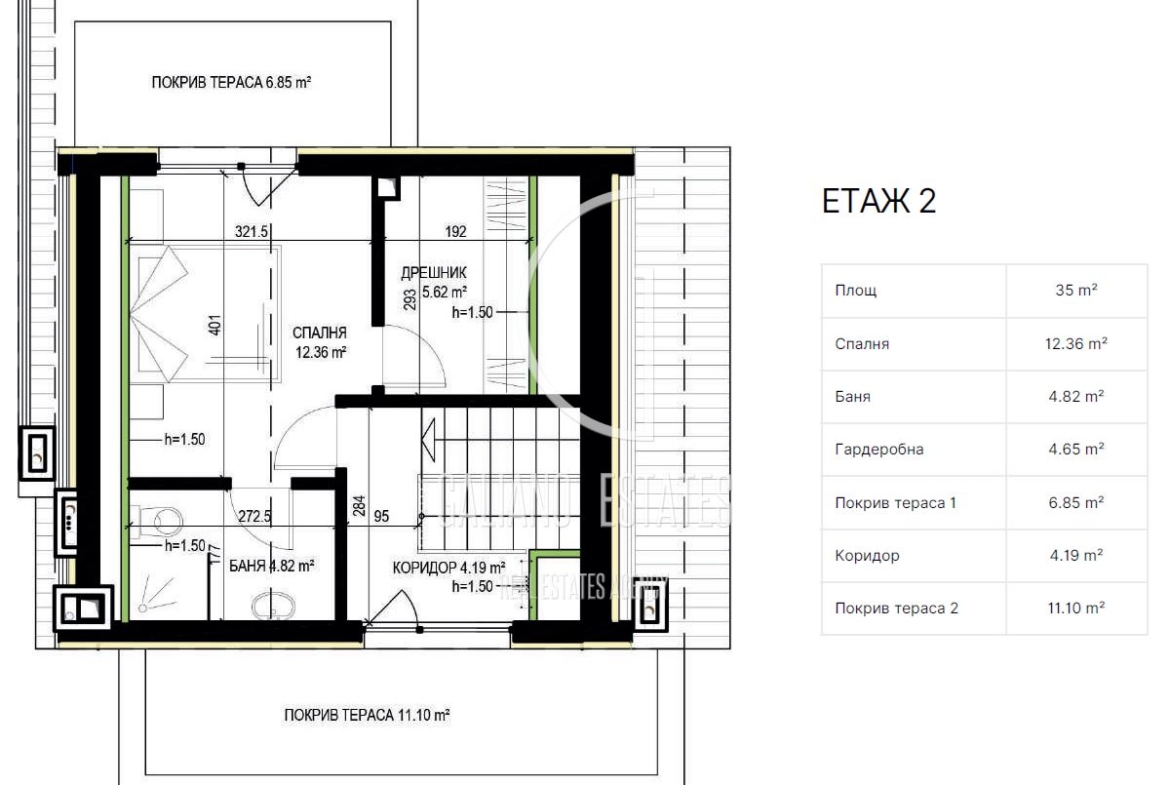
Къщите имат следното разпределение:
СУТЕРЕН (на кота -2,40 с естествено осветление тип „английски двор“) са разположени обслужващи помещения, като склад, мокро помещение и хоби стая;
ПАРТЕРЕН ЕТАЖ (кота ±0.00) са разположени дневна с емпоре в частта на зоната за отдих с височина до трети етаж, трапезария и кухня, свързани с външна тераса и тоалетна. Разполага дворно място и зона за барбекю;
ПЪРВИ ЕТАЖ са разположени две спални със самостоятелни бани и тоалетни;
ВТОРИ ЕТАЖ е разположена голяма спалня с дрешник, самостоятелна баня, тоалетна и две тераси.
Детайли
-
ID на оферта 5288
-
Цена €724,740/1,417,468 лв.
-
Квадратура 282
-
Дворна площ 204
-
Спални 3
-
Стаи 5
-
Баня 0
-
Година на строеж 2026
-
Тип имот Къща
-
Вид оферта Продава
-
Етажи 4
-
Обзавеждане Необзаведен
-
Вид строителство Тухла
-
Цена кв.м. 2570
-
Отопление Локално
-
Ново строителство Да
-
Балкони (бр.) 2
-
Баня с тоалетна (бр.) 4
Адрес
-
Град: София
-
Квартал: в.з.Бункера
Подобни имоти
Стилна къща в затворен комплекс до Англо-Американското училище
- €2,300/4,498 лв.
Нова самостоятелна къща до Ботаническата градина в Бояна
- €1,150,000/2,249,205 лв.
Редова къща в в.з. Косанин дол
- €566,480/1,107,939 лв.
Дом с потенциал в сърцето на Residential Park Lozen
- €772,200/1,510,292 лв.













