Еднофамилна къща в затворен комплекс със зашеметяваща гледка
- €886,000/1,732,865 лв.
- €886,000/1,732,865 лв.
Общ преглед
- Къща
- 2025
Описание
Galiano Estates има удоволствието да Ви представи новоизграждащ се ВИП комплекс, находящ се в полите на планина Витоша с разкриващи се впечатляващи гледки към града.
Комплексът се състои от седем къщи, от които четири са редови и три самостоятелно разположени за допълнителен комфорт ще разполагат с веранда и двор с вечнозелена растителност. Напълно южното изложение на имота ще даде на бъдещите собственици щастието да се наслаждават както на прекрасните изгреви на слънцето, така и на фантастични залези. Предвидено е газифициране на проекта. В сутерена на всяка къща ще има гараж за два автомобила. Вилите ще бъдат предадени на шпакловка и замазка, без обзавеждане с опиця за такова при желание на клиента.
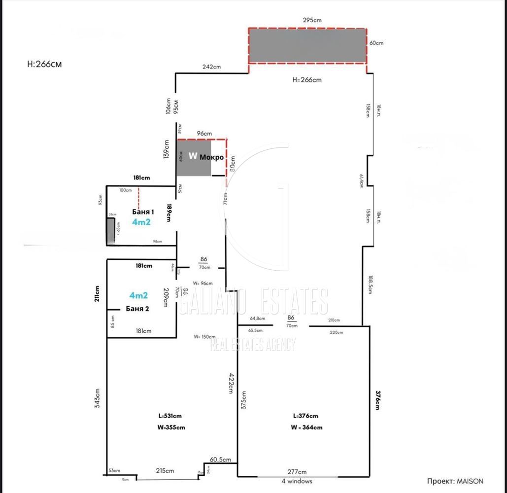
Имотът, който ви предлагаме е еднофамилна къща и разполага с 344 кв. м. площ. Разпределени в общо пет стаи, от които четири са спални, три бани с тоалетни и прилежащ двор от 249 кв м.
БЕЗ КОМИСИОННА ОТ КУПУВАЧА!
Оферта 4334
Детайли
-
ID на оферта 4334
-
Цена €886,000/1,732,865 лв.
-
Квадратура 634
-
Спални 4
-
Стаи 5
-
Баня 0
-
Година на строеж 2025
-
Тип имот Къща
-
Вид оферта Продава
-
Етажи 3
-
Обзавеждане Необзаведен
-
Вид строителство Тухла
-
Цена кв.м. 1398
-
Отопление Газ
-
Ново строителство Да
-
Балкони (бр.) 1
-
Баня с тоалетна (бр.) 3
Адрес
-
Град: София
-
Квартал: Симеоново
Подобни имоти
Модерна нова къща в гр. Драгоман
- €335,000/655,203 лв.
Просторна фамилна къща с функционално разпределение в кв. Симеоново
- €1,377,100/2,693,373 лв.
Светла семейна къща с равен двор в бутиков комплекс
- €395,000/772,553 лв.
Модерна самостоятелна къща с 4 спални в бутиков комплекс
- €495,000/968,136 лв.


