Search
Апартамент с две спални в новострояща сграда, кв.Павлово
  • €273,000/533,942 лв.

Общ преглед

ID на оферта: 6442
  • 3-стаен
  • Тип имот
  • 2027
  • Година на строеж

Описание

Galiano Estates представя апартамент в новострояща се жилищна сграда в кв.Павлово, на границата с кв.Бъкстон, до спирки на градски транспорт, училища и магазини.
Малка бутикова сграда на пет етажа.
На сутеренния етаж са разположени паркоместа.
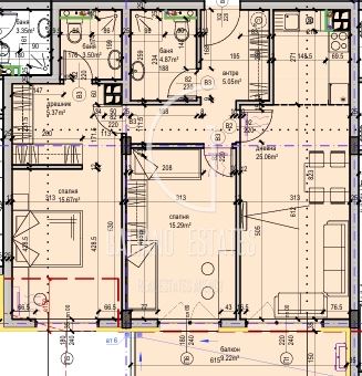
Апартаментът е с функционално разпределение както следва: просторна дневна с кухня и трапезария, две големи спални, едната от които е с дрешник и собствна баня с тоалетна, втора баня с WC, коридор, тераса на дневната
Покрив – хидро и топлоизолация;Топлоизолация – цялостна система на Cerezit с минимална дебелина на пакета 10 см.; PVC дограма – 5 камерен профил, с троен стъклопакет.

Локално отопление.
Възможност за покупка на подземно паркомясто.

Акт 16 началото на 2027г.

Оферта 6442

Детайли

  • ID на оферта 6442
  • Цена €273,000/533,942 лв.
  • Квадратура 112
  • Спални 2
  • Стаи 3
  • Баня 0
  • Година на строеж 2027
  • Тип имот 3-стаен
  • Вид оферта Продава
  • Етаж 3
  • Етажи 5
  • Обзавеждане Необзаведен
  • Вид строителство Тухла
  • Цена кв.м. 2438
  • Отопление Електричество
  • Ново строителство Да
  • Балкони (бр.) 2
  • Баня с тоалетна (бр.) 2

Адрес

  • Град: София
  • Квартал: Павлово

Сравни имоти

Сравни