Представителен офис до Бизнес парк София
- €4,000/7,823 лв.
Общ преглед
- Офис
- 2010
Описание
Galiano Estates има удоволствието да предложи представителен, напълно обзаведен офис с три прилежащи паркоместа, разположен в емблематична бизнес сграда от висок клас в кв. Младост 4 – една от най-предпочитаните локации за корпоративна дейност в София.
Имотът се намира на изключително комуникативно място, в непосредствена близост до метростанция „Бизнес парк София“, с бърз и директен достъп до Околовръстен път, осигуряващ отлична свързаност с всички части на столицата и ключовите бизнес зони.
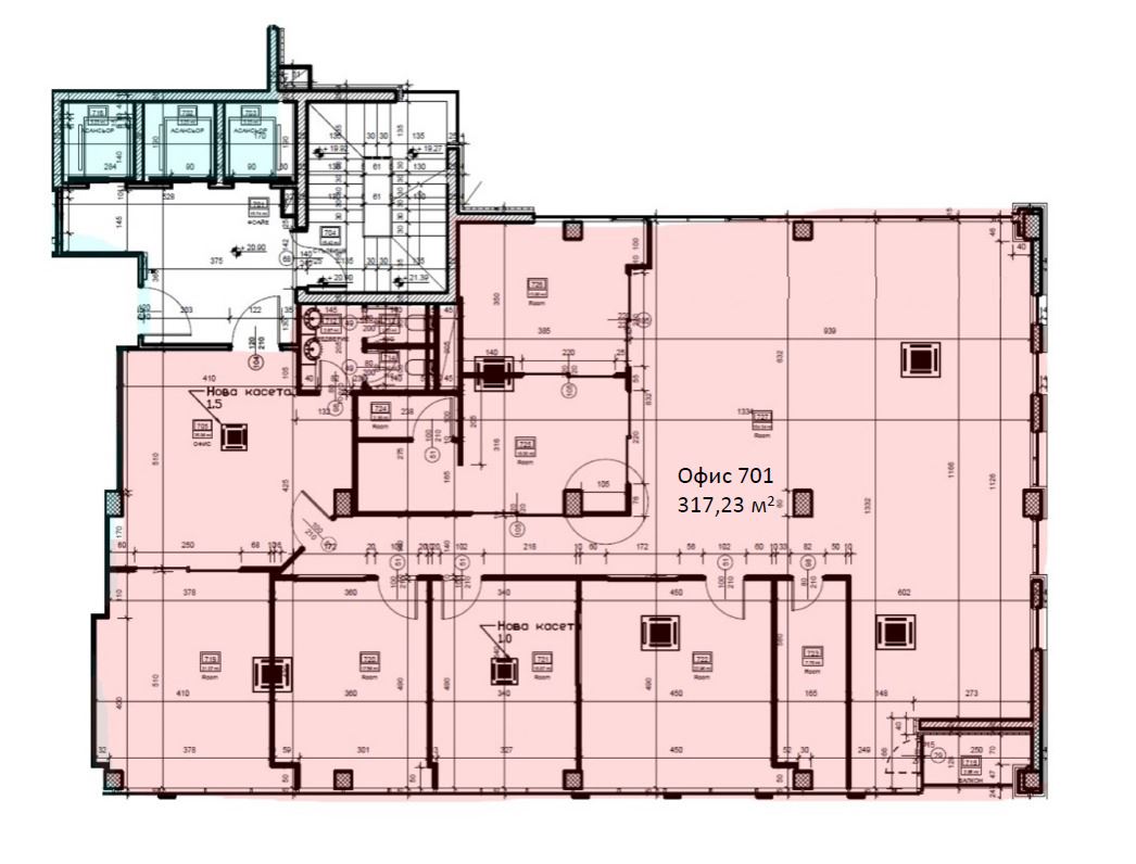
Офисът е с чиста застроена площ от 331 кв.м, разположен на седми етаж от общо осем в модерна, луксозна офис сграда, проектирана с фокус върху комфорт, функционалност и сигурност. Сградата разполага с:
елегантно общо пространство
високоскоростни асансьори
контрол на достъпа
24/7 жива охрана и видеонаблюдение
професионално управление и поддръжка
Офисното пространство е изпълнено с окачени тавани с вградени осветителни тела, противопожарни датчици и вътрешни щори за слънцезащита, създавайки комфортна и продуктивна работна среда.
Функционално разпределение:
две просторни open-space зони
три самостоятелни работни помещения
две конферентни зали
модерно оборудвана кухня
пет санитарни помещения
технически помещения
две панорамни тераси с впечатляваща 360-градусова гледка към София и планина Витоша
Отоплението и климатизацията са решени чрез таванни вентилаторни конвектори, с индивидуален температурен контрол за всяка работна зона, осигуряващи оптимален микроклимат през всички сезони.
Съществува възможност за наемане на целия офисен етаж с обща площ от 625 кв.м.
Такса поддръжка: 3,50 €/кв.м без ДДС.
Имотът е отличен избор за корпоративни компании, IT екипи, международни представителства или бързоразвиващи се бизнеси, търсещи престижна локация, качествена работна среда и безкомпромисна инфраструктура. Оферта 6651
Детайли
-
ID на оферта 6651
-
Цена €4,000/7,823 лв.
-
Квадратура 317
-
Стаи 4
-
Година на строеж 2010
-
Тип имот Офис
-
Вид оферта Отдава под наем
-
Етаж 7
-
Етажи 9
-
Обзавеждане Обзаведен
-
Вид строителство Тухла
-
Цена кв.м. 13
-
Отопление Електричество
Адрес
-
Град: София
-
Квартал: Младост 4
Подобни имоти
Помещение в кв.Слатина
- €70,000/136,908 лв.
Офис в бизнес сграда до метростанция Жолио Кюри
- €3,400/6,650 лв.
Офес в сърцето на града
- €690/1,350 лв.
Луксозен офис до метростанция „Опълченска“
- €2,379/4,653 лв.



