Двустаен Дружба 2
- 365,642 лв. €186,950
Общ преглед
- 2-стаен
Описание
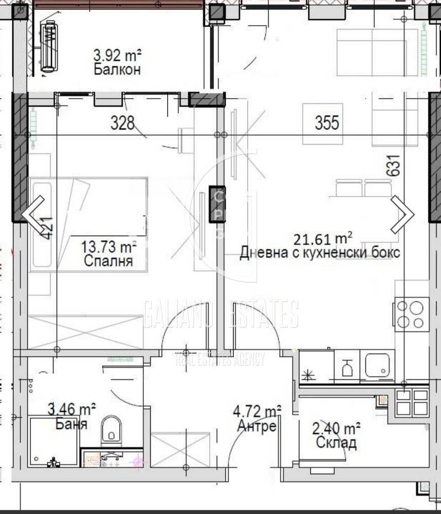
Galiano Estates ви представя двустаен тухлен апартамент разположен на четвъртия непоследен етаж в затворен комплекс в кв. Дружба 2. Жилището се предлага на шпакловка и замазка и има следното разпределение:входно антре, дневна с кухненси бокс, спалня, баня с тоалетна, сервизно помещение и тераса . Отоплението е на ТЕЦ има изведени изводи и за климатици.Добре поддържани общи части, чист вход.Входът с контрол на достъп. Може да закупите и паркомясто в подземен гараж с топла връзка в сградата – 35000 евро.Локацията е отлична – на метри от спирки на градски транспорт, в близост до училище, детска градина, магазини и зелени площи , бърз достъп до основни булеварди .
Оферта №5941
Детайли
-
ID на оферта 5941
-
Цена 365,642 лв. €186,950
-
Квадратура 70
-
Спалня 1
-
Стаи 2
-
Тип имот 2-стаен
-
Вид оферта Продава
-
Етаж 4
-
Обзавеждане Необзаведен
-
Вид строителство Тухла
-
Цена кв.м. 2671
-
Отопление ТЕЦ
-
Балкони (бр.) 1
-
Баня с тоалетна (бр.) 1
Адрес
-
Град: София
-
Квартал: Дружба 2
Подобни имоти
Двустаен апартамент в комплекс” Силвър Сити”
- 1,662 лв. €850
Двустаен апартмент с двор в кв. Манастирски ливади-изток
- 461,576 лв. €236,000
Двустаен напартамент в бутиков комплекс в кв.Манастирски ливади – изток
- 449,841 лв. €230,000
Двустаен апартамент в нов комплекс в кв. Манастирски ливади-изток
- 427,349 лв. €218,500





